Skip to main content
The Andrea Szlavik Team, Sales Associate
610-420-8353
Courtesy: Jessica Vandegrift - Toll Brothers Real Estate, Inc.; Phone: 215-938-8311
Pending
$549,000

Lot 7- 18 Grayson Lane
Downingtown, PA 19335

3
Beds
3
Baths
1,839
Sq. Ft.
0.06
Acres Lot
Townhouse
39 days on Nestfully 159 views
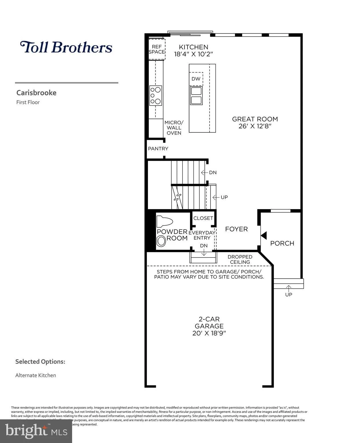
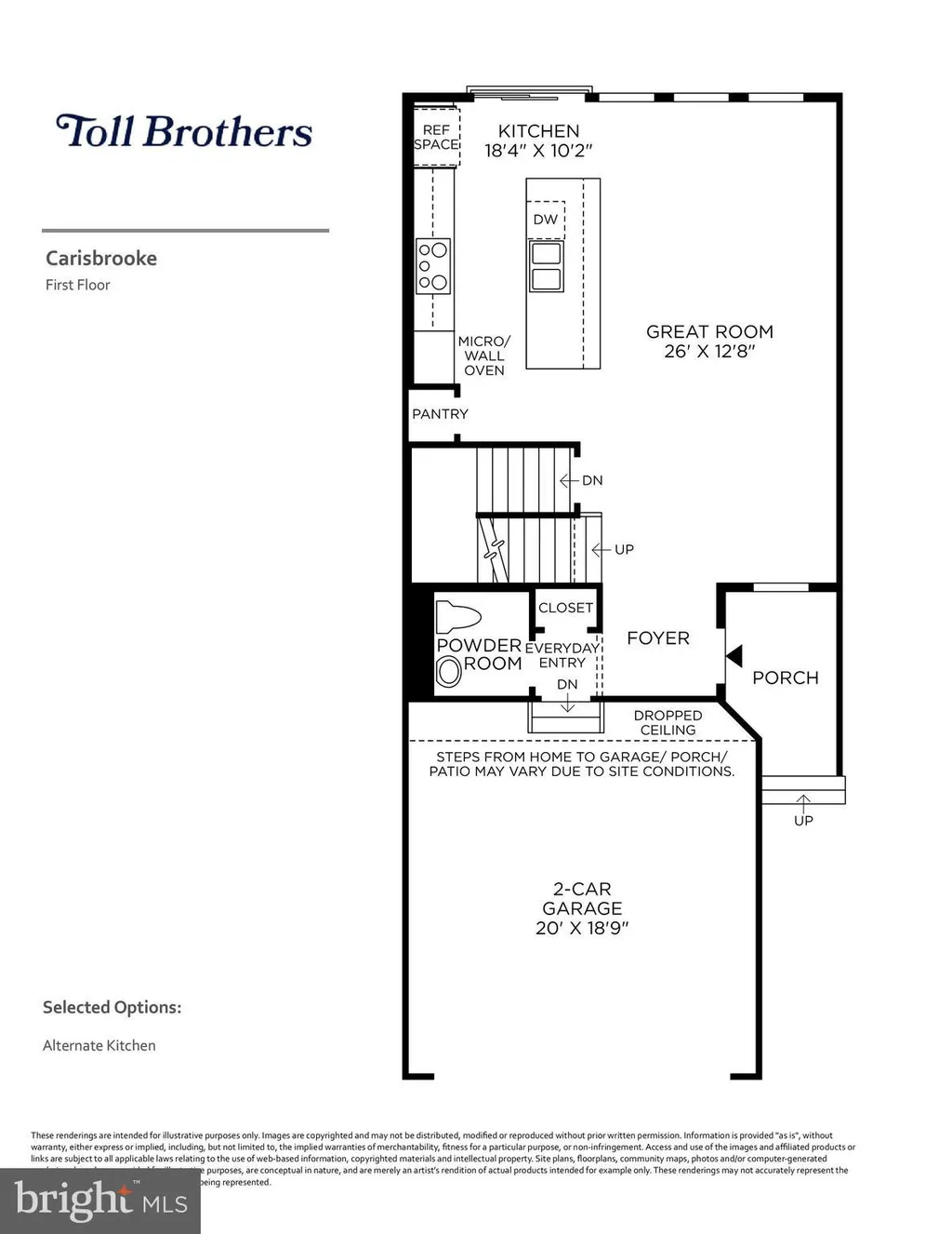
Move-in ready, all-in pricing with a beautiful deck! The Carisbrooke floorplan is a beautifully designed, spacious floor plan that blends both modern luxury and functional living. Complementing the well-designed kitchen is an expanded island with cabinets on both sides and a pantry for additional storage. A convenient everyday entry equipped with a closet and powder room helps with the daily routine. Private side door entrance. Laundry is conveniently located on the second floor. Primary bedroom boasts a beautifully upgraded bathroom, large walk-in closet and tray ceiling with recessed lights and a ceiling fan pre-wire. Rough-in plumbing has already been installed for a future finished basement. Private, wooded back yard. Luxurious, upgraded finishes throughout the home including a gourmet kitchen and hardwood floors throughout the main level.
PACT2114768
Townhouse
3
Other, 2 Story
2 Full/1 Half
2025
CHESTER
0.06 Acres
Public Water
2
Frame, Vinyl Siding
Public Sewer
Loading...
Courtesy: Jessica Vandegrift - Toll Brothers Real Estate, Inc.; Phone: 215-938-8311
BrightMLS logo
BRIGHT MLS - All information, regardless of source, should be verified by personal inspection by and/or with the appropriate professional(s). The information is not guaranteed. Measurements are solely for the purpose of marketing, may not be exact, and should not be relied upon for loan, valuation, or other purposes.
This content last refreshed on 1/20/2026 7:20 PM CST. Some properties which appear for sale on this web site may subsequently have sold or may no longer be available.
Information is deemed reliable but is not guaranteed.